

Hotel Jufa Laterns
Gemeinnützige Privatstiftung der Jugend & Familiengästehäuser
Laterns | AT
Hotel
1. Preis - 2016
2021
Bruno Klomfar
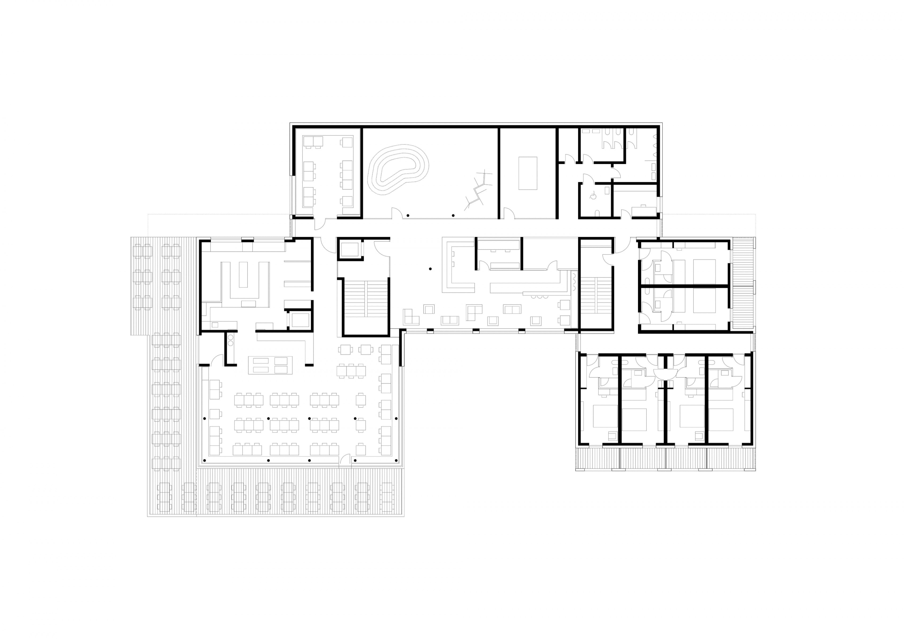
Mit Rücksichtnahme auf die bestehende Bebauung gliedert sich der geplante Neubau harmonisch in das ansteigende Gelände und die Umgebung ein. Der Entwurf sieht eine höhengestaffelte Struktur mit drei unterschiedlich hohen Baukörpern vor, welche sich von der Körnung her möglichst an den Bestand anpassen.
Das Hotelgebäude ist in den Hang geschoben und die Anzahl der Geschosse variiert zwischen drei und fünf Geschossen, durch die Staffelung und die Hanglage wird die volle Höhe kaum wahrgenommen.
Durch das Vor- und Rückspringen der Körper ergeben sich differenzierte Außenräume und spannende Sichtachsen. Durch die gewählte Situierung der drei Gebäudeteile wird zudem im Südwesten eine großzügige öffentliche Fläche für die Hotelgäste und die nähere Umgebung geschaffen.
















