

Eishalle Dornbirn
Dornbirner Messe GmbH
Dornbirn | AT
Sportstätte
Leopold Kaufmann
1998
Hypo Bauherrenpreis – Auszeichnung
Ignacio Martinez
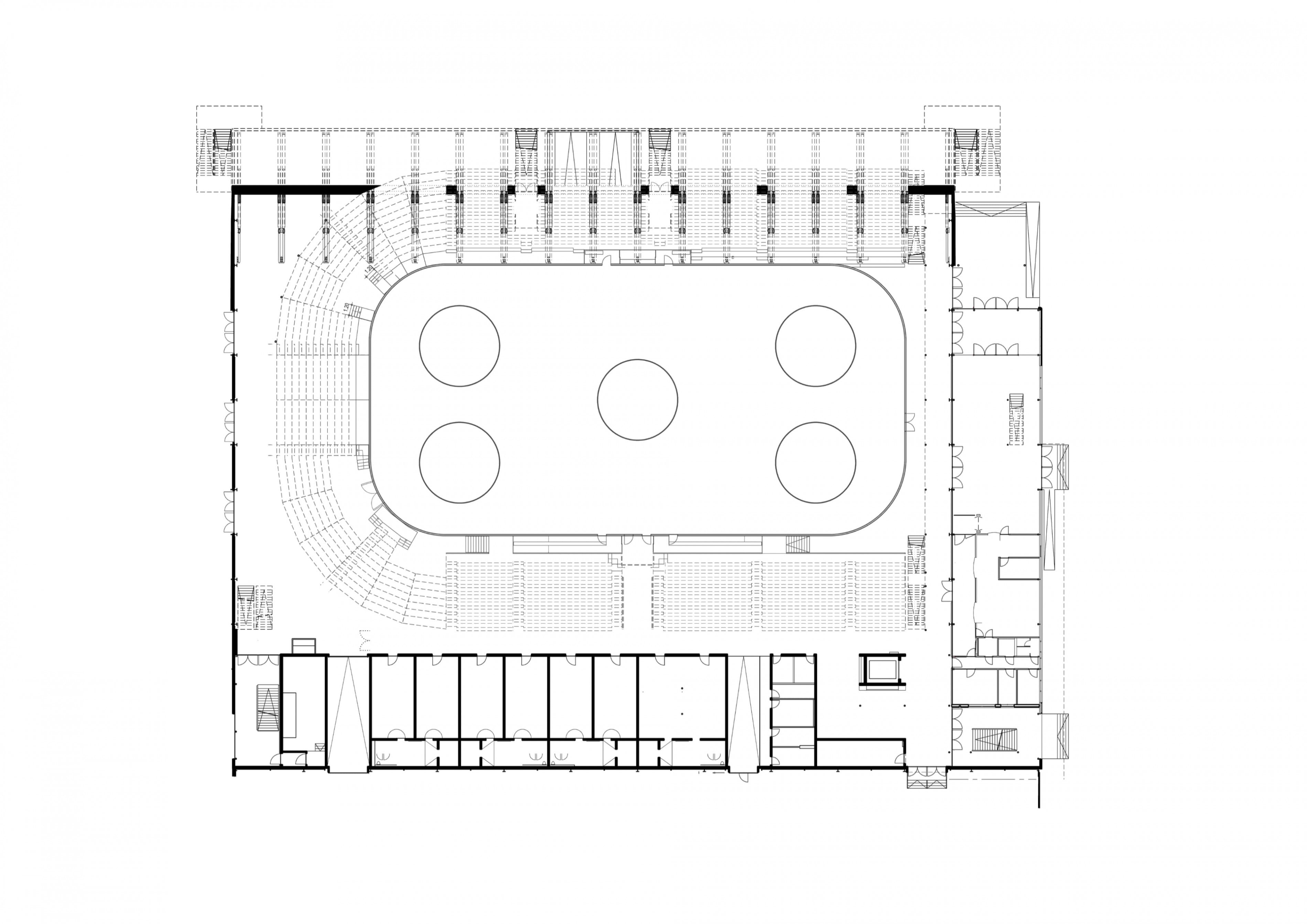
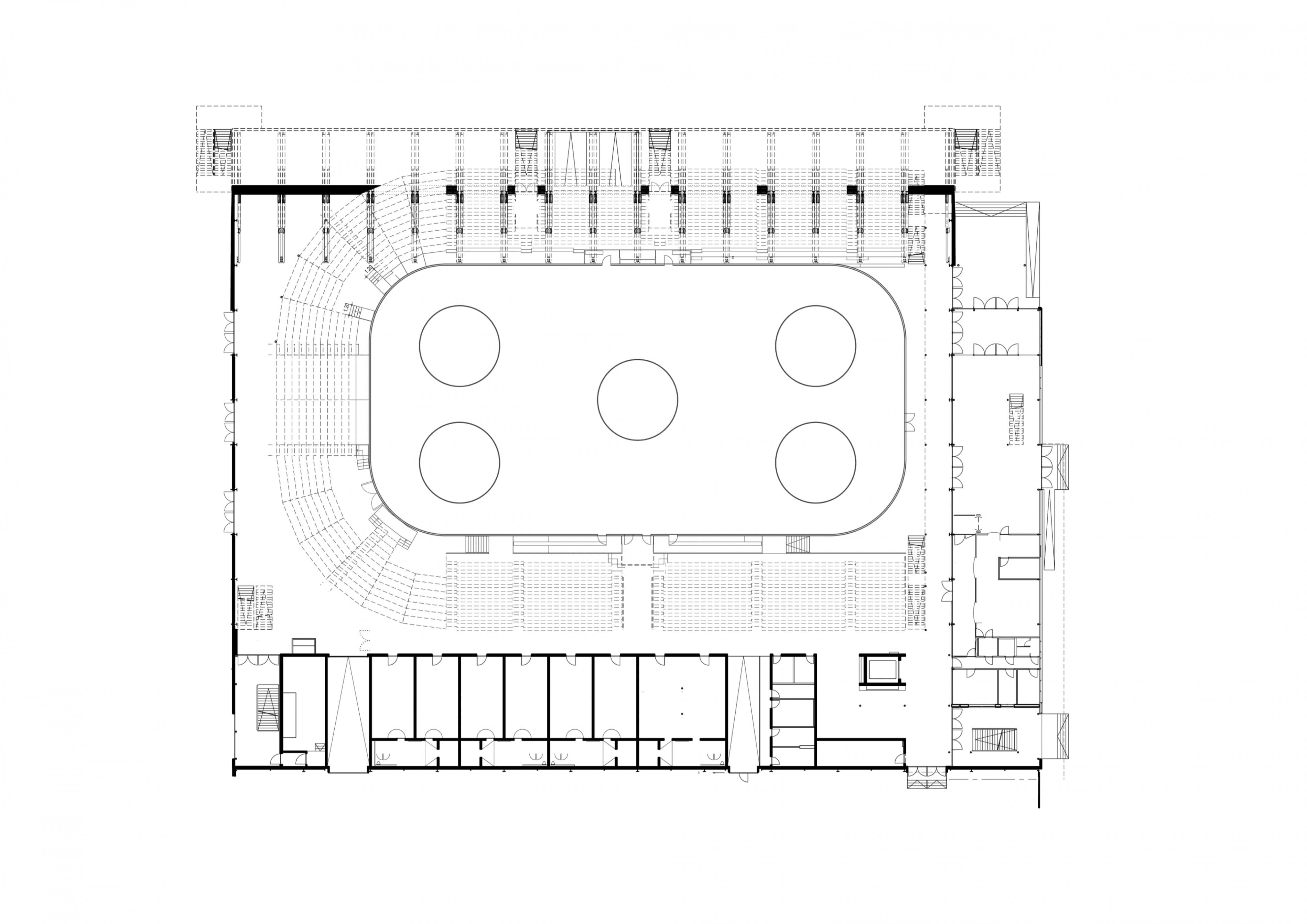
Das neue Messestadion Dornbirn liegt im Verband des örtlichen Messegeländes, am südlichen Ende des Areals und bildet den Abschluss zum angrenzenden Grünland. Durch die markante Lage der Halle soll die neue „Eishalle“ in Ihrer architektonischen Aussage diesem Standort entsprechen.
Die Halle wird, wie andere Hallen der Messe, einer Mehrfachnutzung zugeführt. Neben Messen steht die Halle hauptsächlich der Eisnutzung sowie Sonderveranstaltungen zur Verfügung. Die geschwungene Form soll einerseits den Abschluss des Messegeländes akzentuieren, andererseits wurde versucht durch das Hineinziehen des Hallendaches unter die Tribünen einen südlichen Vorplatz zur Straße hin zu schaffen. Der relativ geschlossene Baukörper ist mit einer Blechverkleidung sowohl am Dach als auch an den Wänden verkleidet. Der Hallenkörper im Inneren wird von einer Stahlkonstruktion in Fachwerksform und großflächigen Holzelementen dominiert. Die Montage des Tragwerkes erfolgte im Vorbau, ähnlich einer Brückenmontage. Sowohl Stahlteile und flächige Holzelemente wurden vorgefertigt und auf der Baustelle zusammengesetzt und montiert.
Bauphysikalisch weisen Eishallen extreme Verhältnisse auf. Dem sehr feuchten und kalten Innenraumklima während der Eisnutzung kann außen die Temperatur sowohl kalt als auch warm sein, je nach Jahreszeit. Innen ist durch eine Mehrfachnutzung mit hohen Menschenansammlungen eine warme feuchte Luft zu erwarten. Dies gibt also sehr verschiedene Voraussetzungen für die Außenhaut.
Durch die Sonderform der Halle war eine Blecheindeckung von Anfang an architektonisch klar. Es sollte ein Dach- bzw. Fassadenblech gefunden werden, welches optisch einen „metallischen“ Charakter aufweist. Auf Grund der guten Einsichtigkeit der Halle von den umliegenden Bergen wurde eine glänzende Oberfläche oder eine zu helle Farbe bewusst vermieden. Vielmehr wurde versucht eine zurückhaltende nicht glänzende Oberfläche zu forcieren.














