Projekte


Pflegeheim Höchsterstrasse
Bauherr
Stadt Dornbirn
Stadt Dornbirn
Ort
Dornbirn | AT
Dornbirn | AT
Typologie
Pflegeheim
Pflegeheim
Architektur
ARGE Riepl Riepl
Wettbewerb
1. Preis - 2001
Fertigstellung
2005
2005
Auszeichnungen
Vorarlberger Holzbaupreis 2007 - Auszeichnung
Fotografie
Bruno Klomfar
Bruno Klomfar
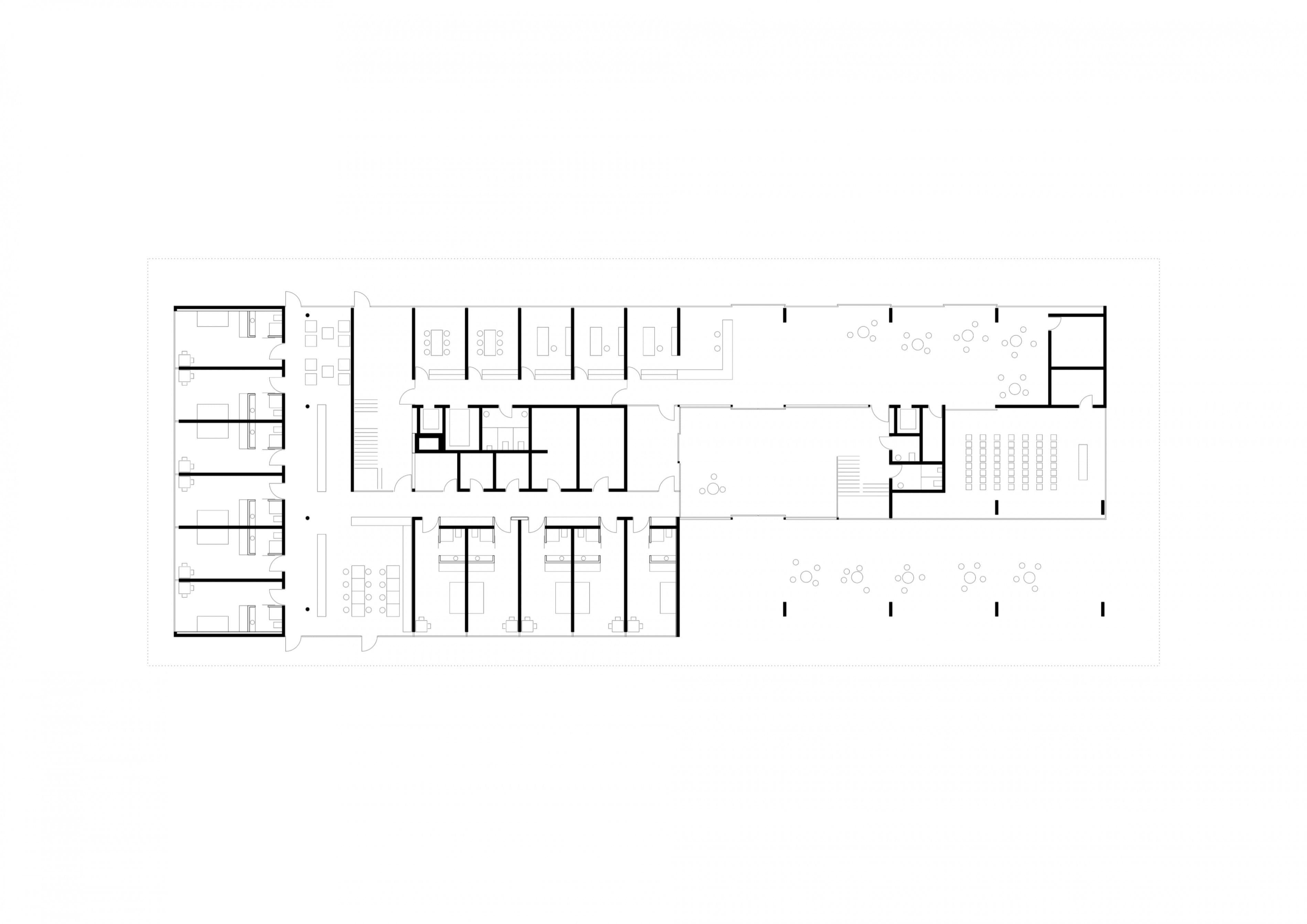
Pflegeheim mit 107 Zimmern, in einem parkähnlichen Grünraum entlang der Dornbirner Ache. Auf einem gläsernen Erdgeschoss (Eingang, Verwaltung, Kapelle, Mehrzweckräume und Dementenstation) schwebt ein dreigeschossiger Holzkubus. Die eingezogenen Loggien der versetzt angeordneten Aufenthaltsräume bilden tiefe Kerben, die sich mit den außen bündig liegenden Fensterbändern der Zimmer abwechseln.

Schwarzplan





Erdgeschoss




Obergeschoss




