

Mercedes Schneider
Schneider Automobil GmbH
Dornbirn | AT
Autohaus
AREA C.I. Design GmbH
2022
Marc Lins
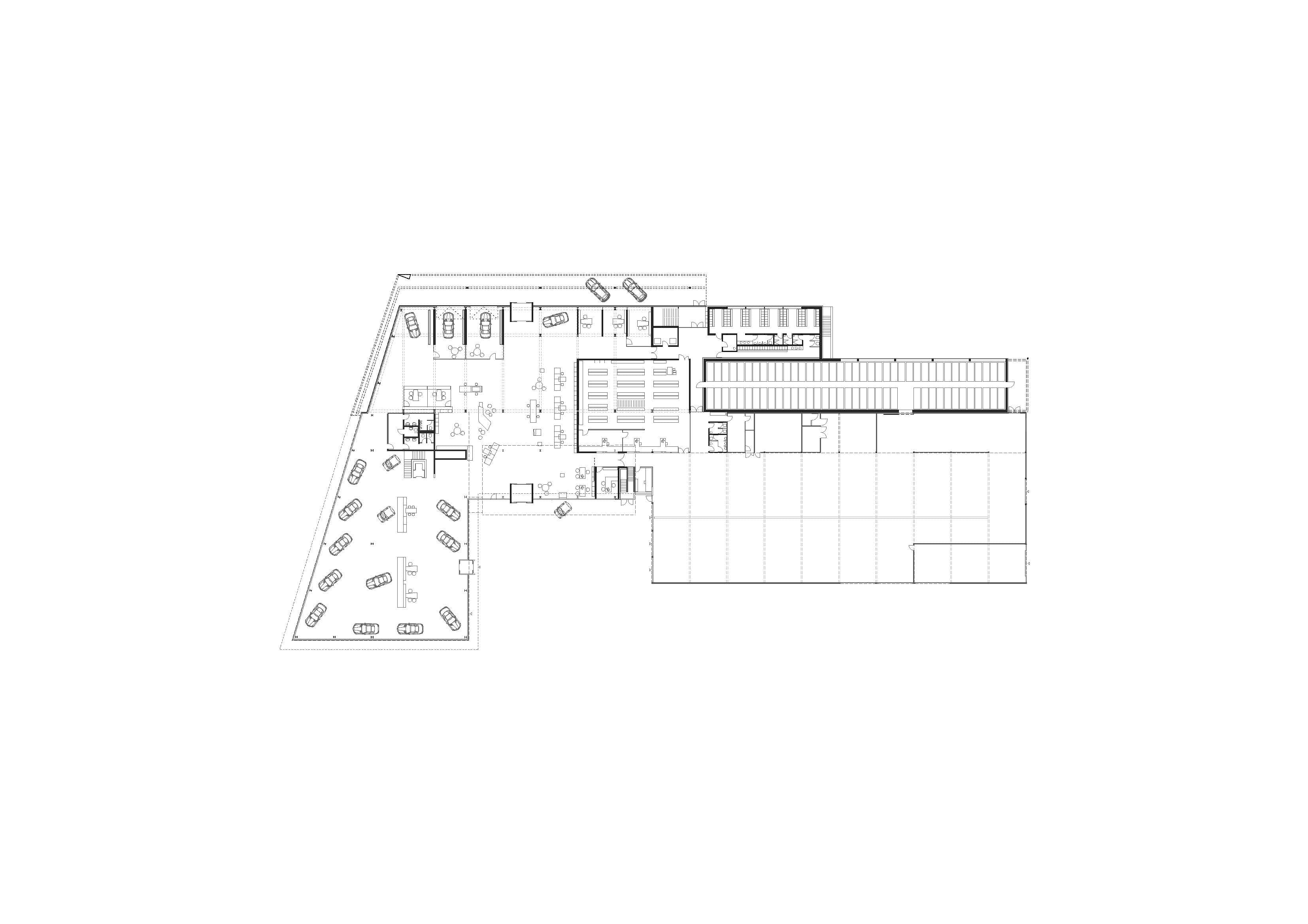
Mit der Erweiterung des Betriebsareals soll ein neuer Betriebsstandort entstehen, der zum einen alle funktionalen Abläufe erfüllt und zum anderen dem Betrieb ein neues äußeres Erscheinungsbild gibt, welches auch respektvoll mit dem Bestand umgeht. Die neuen Baukörper (Reifenlager / Mitarbeitertrakt) schmiegen sich nordseitig an den Bestand an, die neue Ausstellungshalle schiebt sich als zentrales Bindeglied zwischen Werkstatt und bestehender Ausstellung dazwischen. Das zweiseitige Vordach umgreift die Zubauten nord- und westseitig und bildet zum benachbarten Gebrauchtwagenplatz einen fließenden Übergang, so dass dieser in das Gesamtareal integriert wird. Der gläserne Bestand des Verwaltungsbaues wird in der stadtseitigen Ansicht (Kreuzung) als dominanter Hauptbaukörper wahrgenommen, die Zubauten wirken untergeordnet.













