

Personalhaus Lech
Lech Bergbahnen AG
Lech | AT
Personalhaus
2025
Dominik Kummer
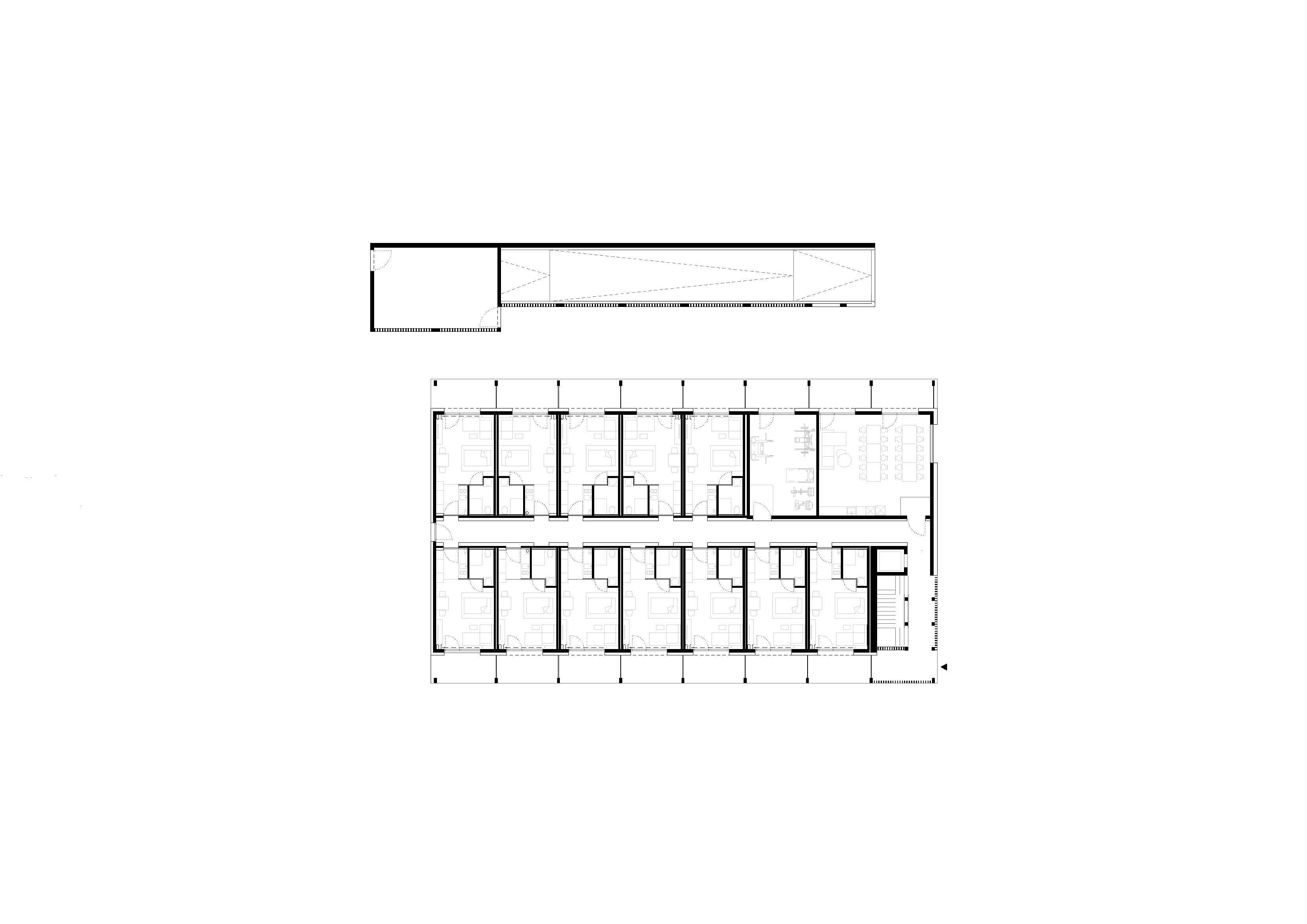
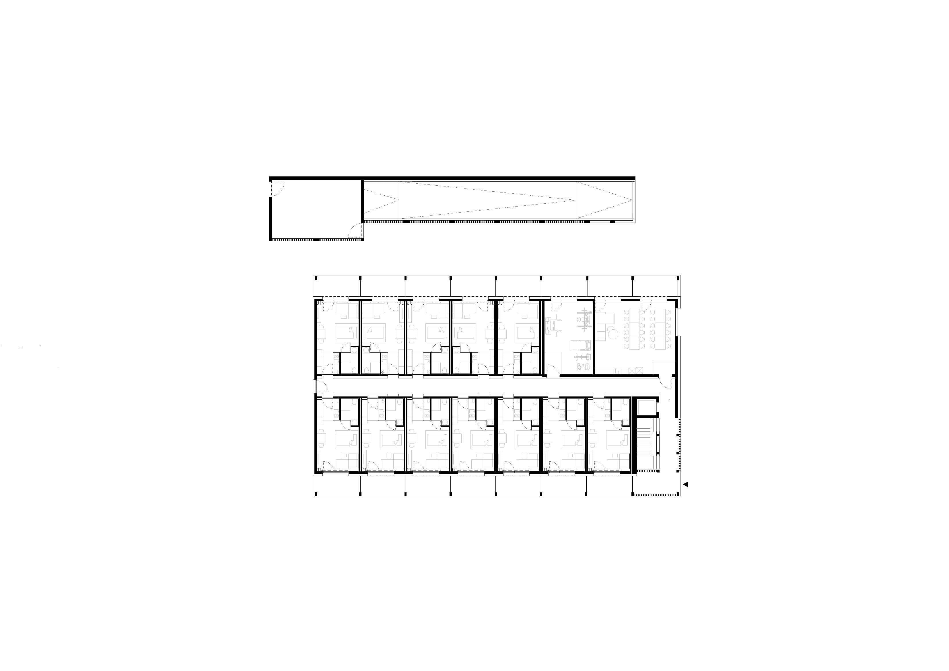
Mit dem neuen Mitarbeitergebäude der Lech Bergbahnen im Ortsteil Zug wurde moderner und zukunftsfähiger Wohnraum für den alpinen Tourismus realisiert. Das Teamhaus umfasst 41 hochwertig ausgestattete Wohneinheiten sowie eine Tiefgarage mit 33 Stellplätzen und wurde in nachhaltiger Holzmodulbauweise umgesetzt. Ziel des Projekts war es, den steigenden Anforderungen und Bedürfnissen der Mitarbeitenden langfristig gerecht zu werden und zugleich ein klares Zeichen für verantwortungsvolles Bauen zu setzen. Die intelligente Modulbauweise ermöglichte eine hohe Ausführungsqualität bei deutlich verkürzter Bauzeit. Durch die serielle Vorfertigung in der Halle entstanden witterungsunabhängig präzise gefertigte Module mit vollständig integrierten Installationen. Traditionelles Handwerk und moderne industrielle Prozesse wurden zu einem effizienten, zeitgemäßen Baukonzept verbunden.













