

Wohnanlage B1
Kaufmann Liegenschaftsprojekte GmbH
Bizau | AT
GewerbeWohnbau
2017
Vorarlberger Holzbaupreis 2019 - Preis
Norman Radon
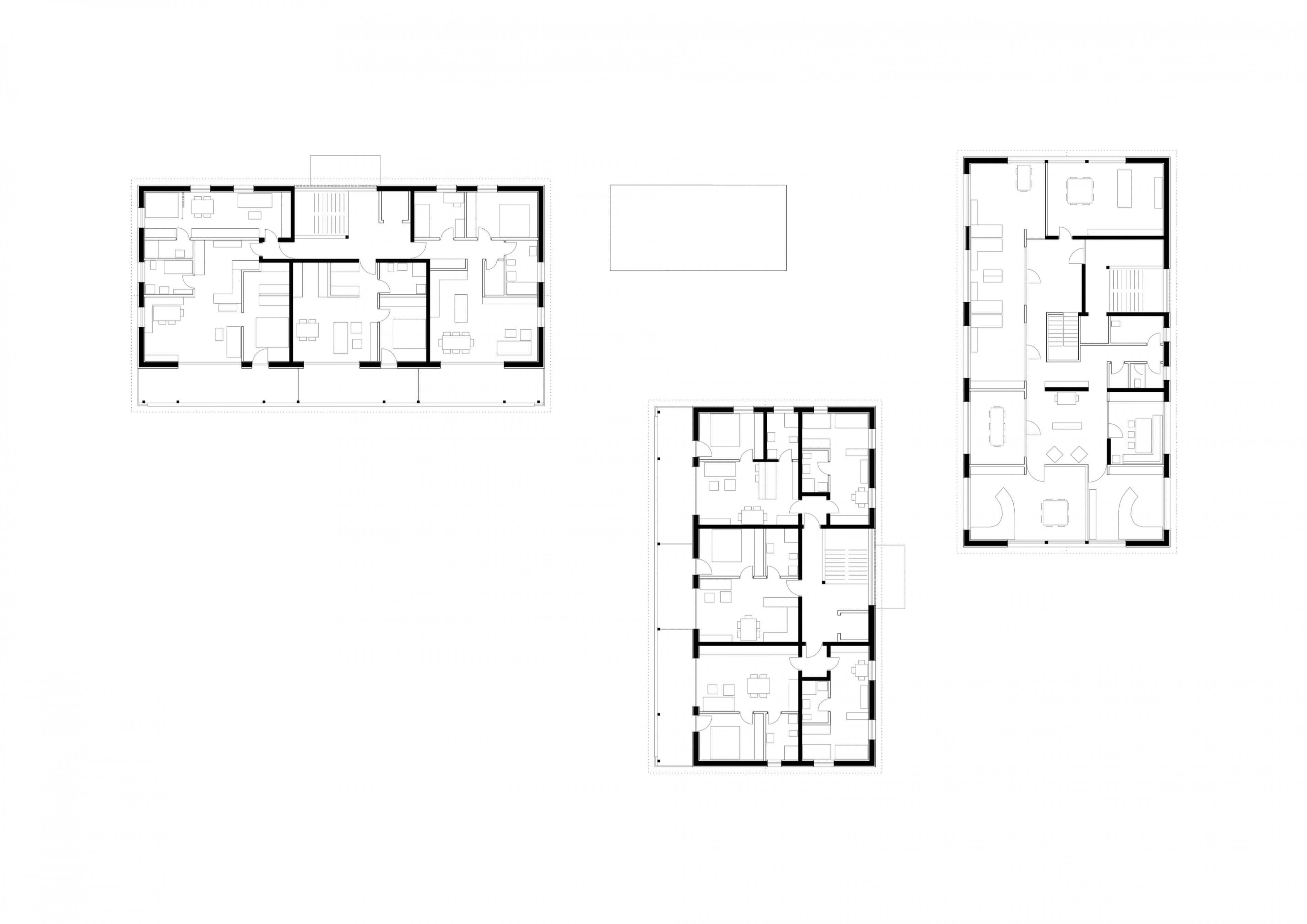
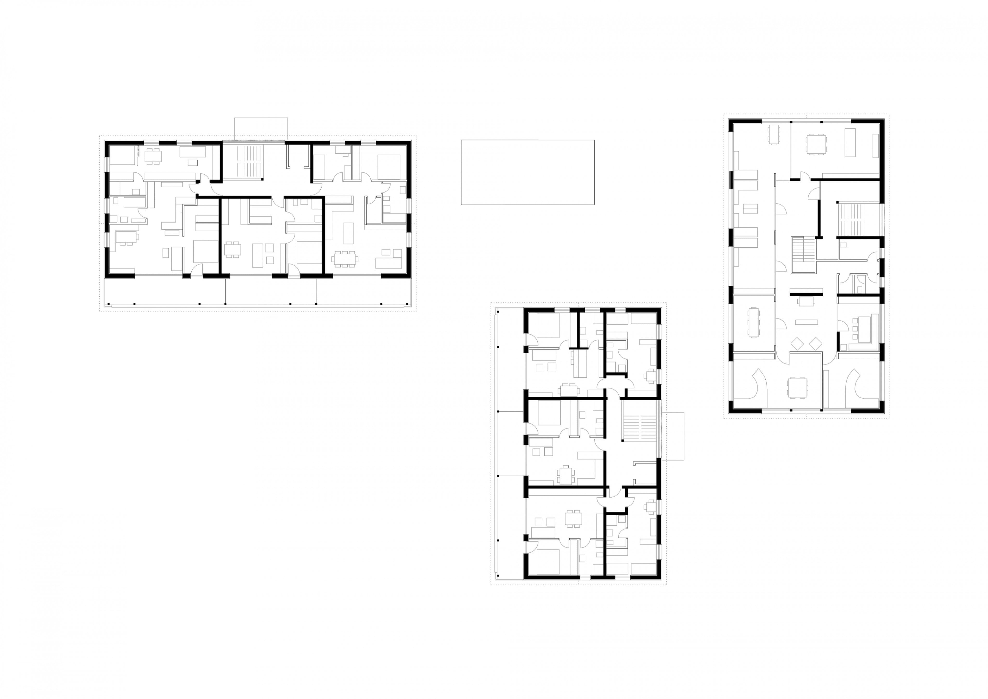
Aus einem ehemaligen Säge- und Holzverarbeitungsbetrieb am Rande des Bizauer Dorfzentrums entstand ein Quartier aus insgesamt 3 Baukörpern, wovon einer davon als Bürogebäude genutzt wird. Straßenräumlich mit einer höheren Verdichtung konzipiert öffnet sich das Quartier rückwärtig zur Landschaft mit Blick zur Kanisfluh und der ruhigen Sonnenseite des Areals. Die 2,5 bis 3-geschossigen Baukörper, komplett in hoch vorgefertigter Holzbauweise, lassen flexible Wohnungsgrundrisse zu, indem kaum tragende Wände als Konstruktionsprinzip angewendet wurden. Auch das Treppenhaus ist aus Brettsperrholz mit eingehängten Betontreppenläufen konstruiert, bewusst wurde weit möglichst auf den Einsatz von heimischer Fichte Wert gelegt.











