

Gemeindehaus Raggal
Gemeinde Raggal Immobilienverwaltungs GmbH & Co KEG
Raggal | AT
Gemeindehaus
1. Preis - 2005
2006
Vorarlberger Holzbaupreis 2007 - Auszeichnung
Vorarlberger Hypo Bauherrenpreis 2010 - Auszeichnung
Konstruktiv 2010 - Hauptpreis
Adolf Bereuter
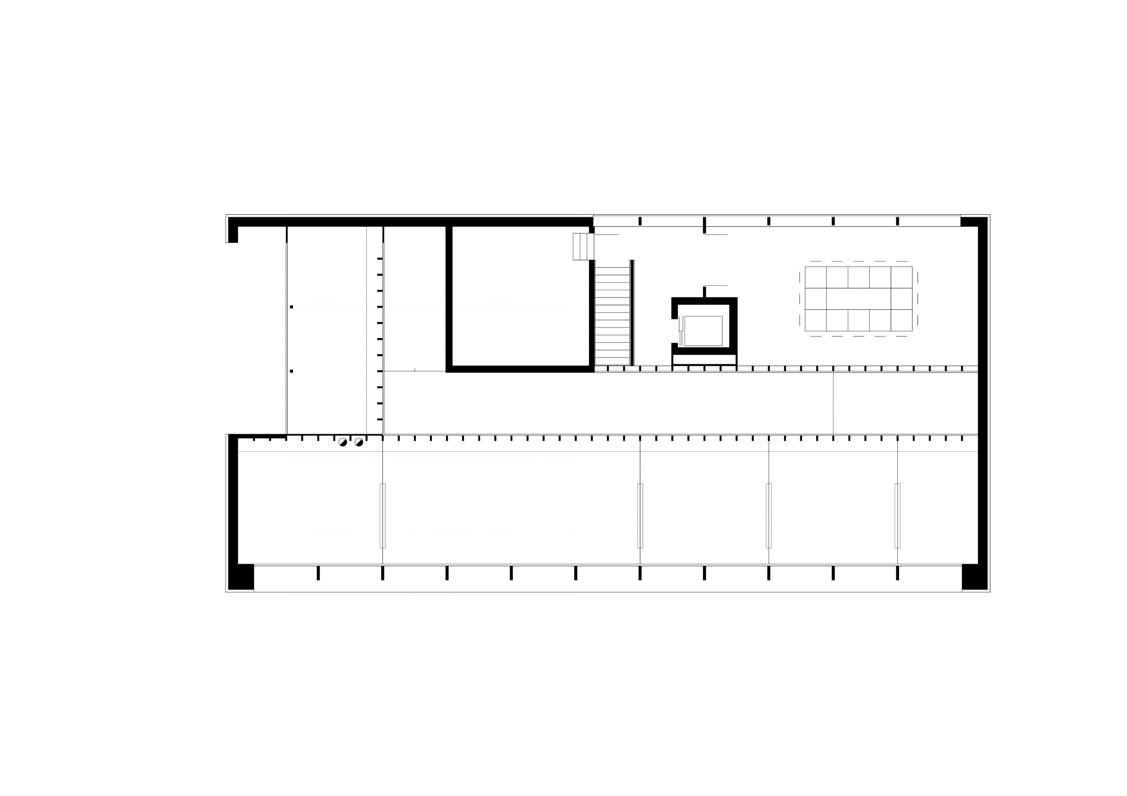
Der Neubau des Gemeindehauses ist zum bestehenden Dorfplatz hin situiert und ergänzt das bestehende Ensemble mit Kirche, Schulhaus und Gasthof. Um die Aussicht vom Kirchplatz taleinwärts möglichst wenig zu beeinträchtigen, wurde an der Straße ein eingeschossiger, nach Norden ansteigender Baukörper situiert. Die Dachform entwickelt sich aus der räumlichen Situation mit dem aufgesetzten Sitzungssaal, der Zuschnitt erzeugt spannende, großzügige Raumsituationen. Das neue Gebäude umfasst Untergeschoss, Erdgeschoss und ein Obergeschoss.
Das Erdgeschoss wird vom Dorfplatz aus über einen neuen Zugang erreicht. Es ist über einen zentralen Gangbereich erschlossen, an dem sich rechterhand die Räumlichkeiten für das Gemeindeamt (Bürgermeister-Büro, Bürgerservice, Buch-haltung, Bauamt und Reserveraum) befinden. Im hinteren Gangbereich ist ein Raum für die Eltern-Kind-Beratung eingerichtet. Linkerhand des Erschließungsganges befinden sich das Tourismusbüro, anschließend der Stiegenhausbereich, die sanitären Einrichtungen und ein Gemeinschaftsraum. Im Obergeschoss ist nur noch ein Teil des Raumes umbaut. In diesem Bereich befinden sich das Sitzungszimmer und ein Lagerraum. Das Untergeschoss verfügt auch über einen eigenen Eingang. Hier befinden sich ein Probelokal für den Musikverein, anschließend Lager- und Büroraum für den Gemeindearbeiter und die Technikräume für die Biomasse-Heizung. Im westlichen Gebäudeteil dieses Untergeschosses sind noch ein Archivraum und Sanitärräume. Das gesamte Gebäude wird behindertengerecht durch einen Lift erschlossen.
Das Gebäude tritt nach außen hin insbesondere mit einer Holzfassade und wenigen, aber großzügigen Öffnungen in Erscheinung. Das Dach wurde als zweiseitig geneigtes Pultdach in Blech ausgeführt. Im Inneren spielt Holz neben wenigen anderen Materialien die wesentlichste Rolle. Für Wand-, Deckenverkleidungen und Einrichtung wurden fast ausschließlich massive Weißtannenplatten verwendet, die zusammen mit den großzügigen Raumhöhen und Verglasungen eine angenehme Raumatmosphäre erzeugen.

















