

Geriatriezentrum Liesing
Wiener Krankenanstaltenverbund
Wien | AT
Pflegeheim
ARGE Riepl Kaufmann Bammer Architektur
3:0 Landschaftsarchitektur
1. Preis - 2006
2014
ZV-Bauherrenpreis 2013 - Preis
Bruno Klomfar
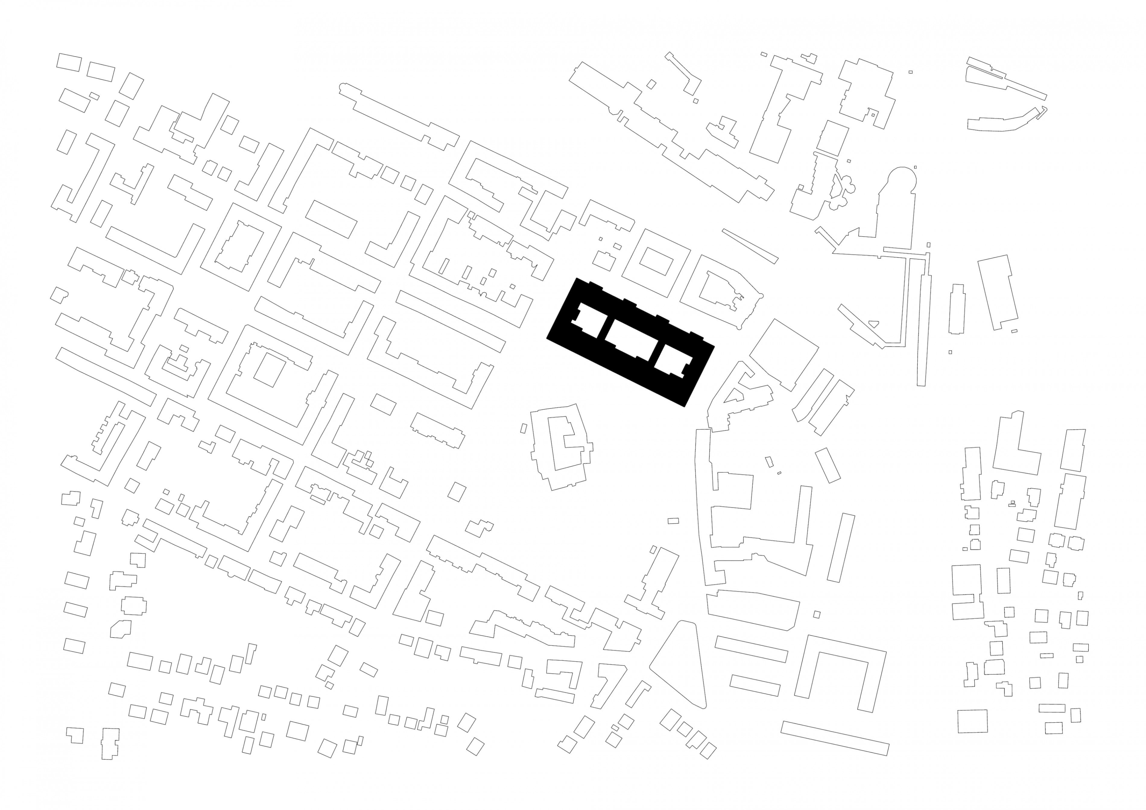
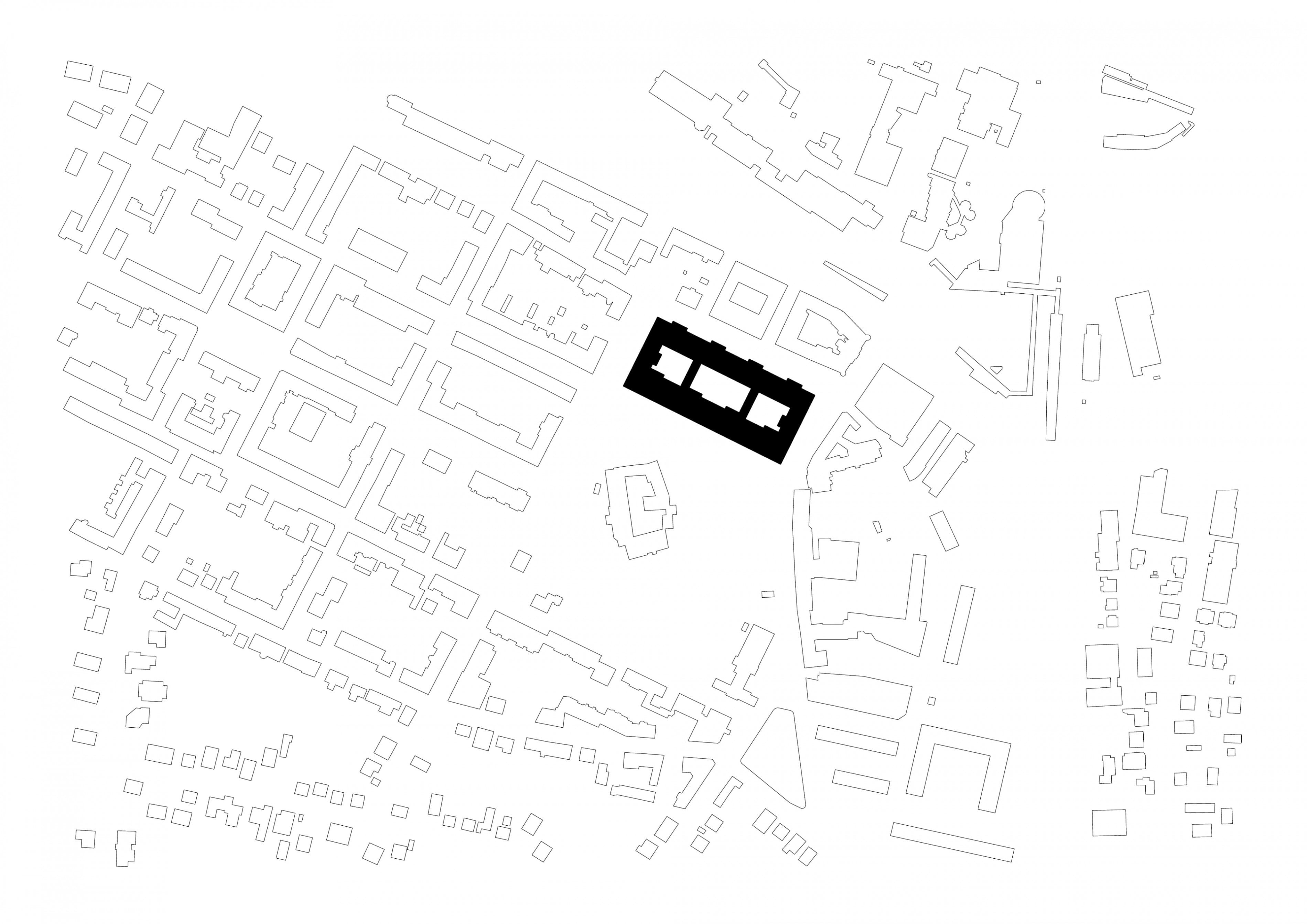
Das neue Bauwerk reagiert auf die komplexe städtebauliche Situation. Seine Struktur thematisiert die Überlagerung von Stadt und Park. Eine neuartige Mischung entsteht, welche die signifikanten Eigenschaften beider Kategorien miteinander verbindet.
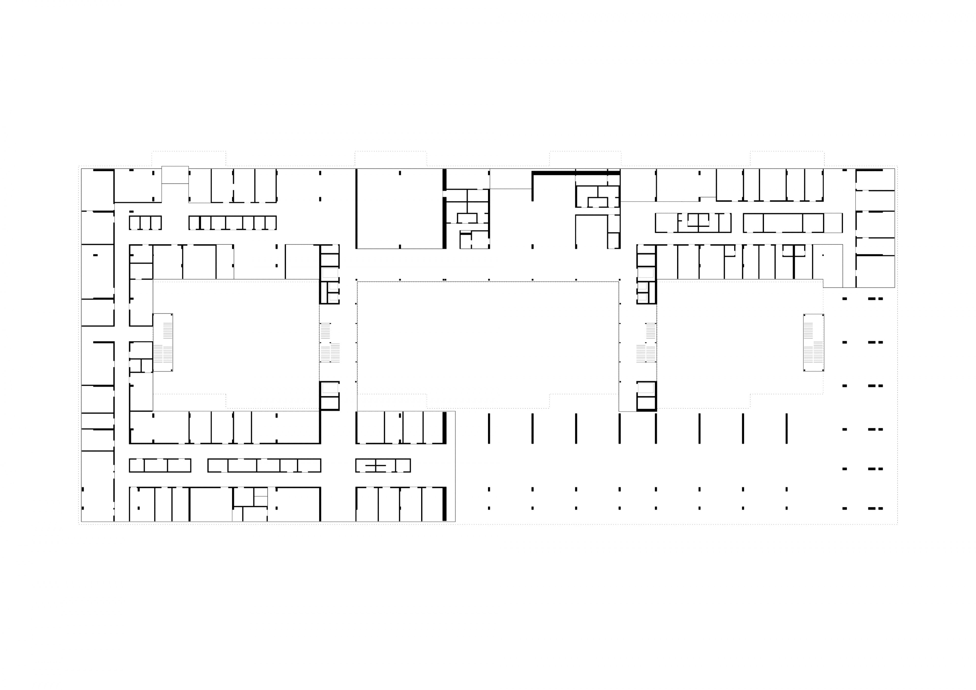
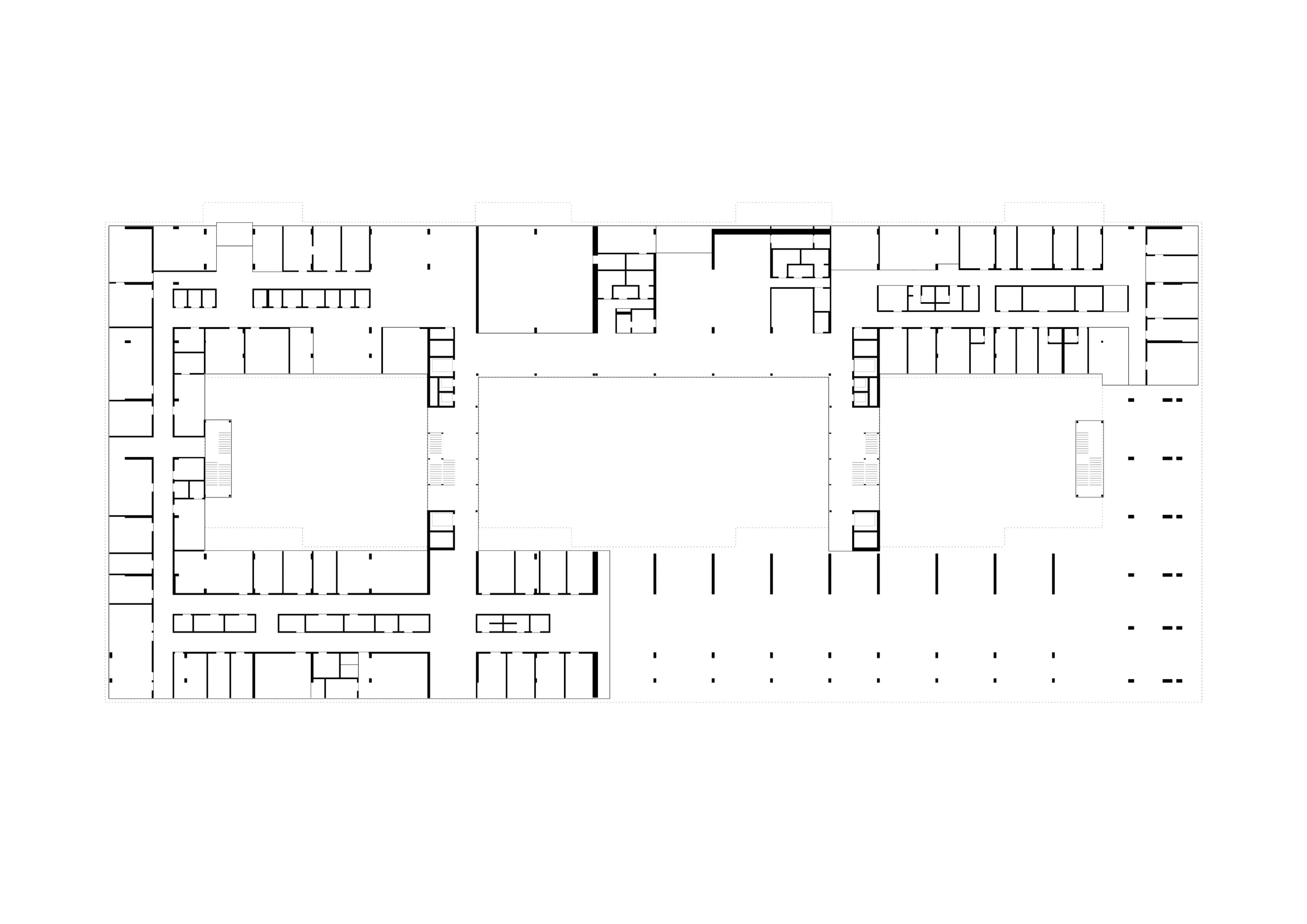
Durch das Abrücken von der Haeckelstraße entsteht als Vorfeld zur Neuen Geriatrie ein breiter Stadtraum, der bereits Elemente des Parks beinhaltet. Das Haus selbst ist als offenes Karree gedacht, das einerseits der Systematik und Maßstäblichkeit des umliegenden Quartiers folgt (strukturelle Merkmale, Baufluchten, Höhenentwicklung) und die Integration sucht. Andererseits entwickelt sich - analog der Nutzung - ein eigenständiger Typus, der im Gegensatz zur Hermetik des historischen Bestandes Offenheit und Transparenz forciert.
Die Neue Geriatrie ist kein hermetischer Block, sondern raumgreifend offen strukturiert, um – zu Gunsten der Bewohner – vielfältige Freiraumbezüge zu ermöglichen. Der großzügige, durch zwei gläserne Brückenspangen gegliederte Innenhof ergibt abwechslungsreiche, spannungsvolle Beziehungen zwischen Park und Bauwerk. Der Park ist nicht nur „draußen“, sondern wird zum bestimmenden Bestandteil der gesamten Anlage. Es entstehen differenzierte Freiraumsituationen, die dem breiten Spektrum an Nutzungserfordernissen besser entsprechen als allgemeingültige Lösungen. Die Erdgeschosszone bleibt weitgehend durchlässig und barrierefrei. Es entfalten sich verschiedene Ambiente, die zwischen Geborgenheit und Offenheit changieren. Gedeckte Bereiche bilden „weiche“ Übergänge und bieten beschattete Plätze inmitten der Parks. Wenn auch eine klare Abgrenzung für das Geriatriezentrum erforderlich ist, so bietet die vorgeschlagene Strukturierung der Parkfläche auch für die Bewohner des Bezirks zusätzliche Nutzungsmöglichkeiten und insgesamt vielfältige attraktivere Aufenthaltsqualitäten.

















